Descriptif
Idéalement située sur le plateau de Vessy, au coeur d'un quartier résidentiel prisé, cette villa à l'architecture contemporaine vous séduira dès les premiers instants par sa distribution idéale, ses beaux volumes et sa luminosité optimale.
Répondant aux normes HPE, la maison assure un confort thermique optimal.
La maison bénéficie d’une configuration particulièrement appréciable, avec les garages faisant office de séparation, lui conférant une réelle sensation d’indépendance, proche de celle d’une villa individuelle.
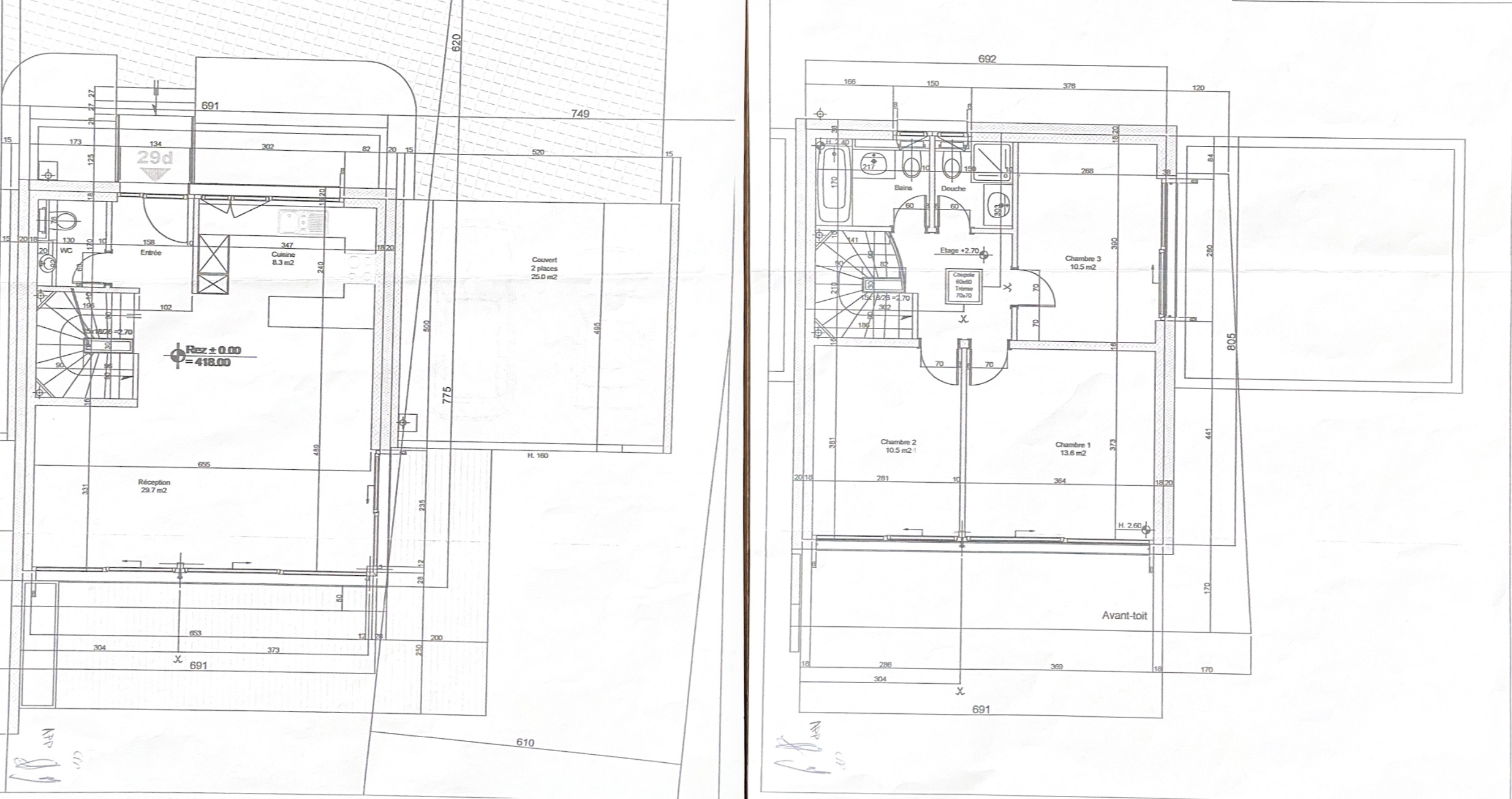
La villa se distribue sur 3 niveaux :
Rez-de-chaussée :
- Hall d'entrée accueillant avec WC visiteurs
- Cuisine ouverte entièrement équipée et agencée
- Spacieux séjour lumineux avec de larges baies vitrées et bénéficiant d'un accès direct à la terrasse et jardin
Etage :
- Trois chambres (11m2, 11m2 et 14 m2)
- Salle de bians / WC
- Salle de douches / WC
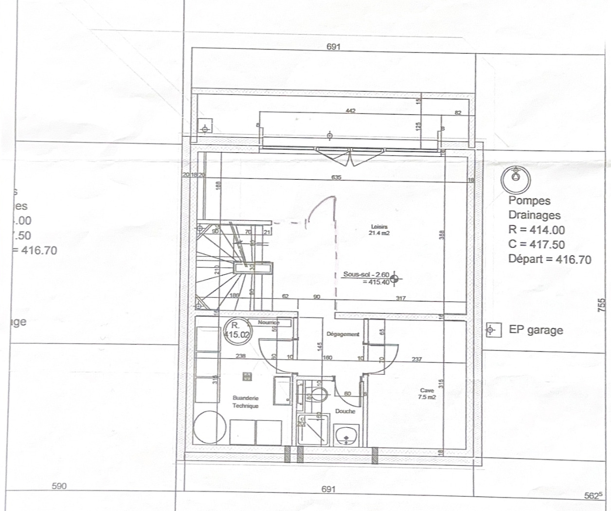
Sous- sol :
- Vaste pièce polyvalente de 22 m2 avec de grandes fenêtres qui amènent une belle luminosité de l'extérieur / Peut véritablement servir de 4 ème chambre
- Salle de douches / WC
- Cave
- Local technique / Buanderie
Extérieur :
- Jardin entièrement clos
- Piscine
- Terrasse
- Garage double de 27 m2 pour deux voitures
- Place de parking pour deux véhicules à l'extérieur
Une maison baignée de lumière, orientée sud-sud-ouest, avec piscine et accès rapide au centre de Genève — le parfait équilibre entre confort, détente et praticité.
Le centre de loisirs et sportif du Grand-Donzel, les arrêts de bus des lignes 41 et 20, l'école primaire de Pinchat sont à quelques pas.
Cette propriété offre un cadre de vie particulièrement agréable.
La villa HPE, équipée d'une pompe à chaleur et de panneaux solaires, assure une bonne efficacité énergétique et une gestion optimisée des coûts.













