Descriptif
Cet appartement, traversant de 4 pièces, conjugue le cachet d'un immeuble ancien avec ses volumes généreux et ses hauts plafonds avec des prestations modernes dans un quartier vivant et recherché de Geneve.
Il a été rénové en 2010 et se situe au 4ème étage d’un immeuble des années 1910 très bien entretenu.
Cet appartement peut bénéficier de l'allègement fiscal CASATAX (les coûts des droits d'enregistrement et de la création de cédules hypothécaires sont réduits)
Rénové en 2010, cet appartement traversant dispose d'une surface habitable de 84 m2 et d'un balcon
de 2 m2.
Distribution :
Traversant et très bien conçu, ce dernier se compose comme suit :
Partie jour :
- Hall d'entrée
- Salon spacieux avec balcon
- Espace salle à manger
- Cuisine équipée
- Balcon (belle orientation et vue dégagée)
Partie nuit :
- 2 chambres donnant sur une cour intérieure et vue dégagée sur les montagnes
- Salle de bains avec raccordement buanderie
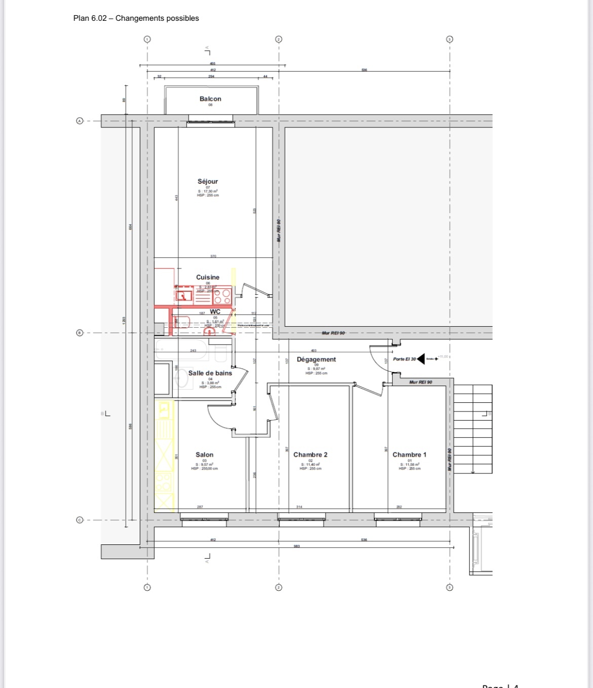
Il est possible de créer une troisième chambre à la place de la cuisine actuelle et d'installer une cuisine ouverte dans le salon comme illustré avec les photos ( travaux réalisés dans un appartement identique et selon plan annexé)
Ascenseur (année d’installation 2018)
1 cave (3m2)
Buanderie commune
Situation
Situé à proximité du nouveau quartier de Pont Rouge à côté de la banque Pictet et Rolex.
Proche de tous les commerces et des transports publiques (arrêt du tram 12 au pieds de l'immeuble).
Idéalement desservi par l’autoroute à 3 minutes.
Plusieurs parkings couverts proches ( possibilité de louer une place au mois)
Idéal pour investissement.
Charges mensuelles : env. 458 Frs. / mois
Chauffage : Radiateurs
Energie : Chaudière à gaz Buderus (2015)
Forme juridique de propriété : PPE
Surface de vente : 84 m2 plus 2 m2 de balcon
Disponibilité : De suite, libre de tout occupant
Etage : 4e étage
Fonds de rénovation : CHF 37'659.04






